棒條振動篩各種幅面規格和篩孔尺寸的新型結構模式篩板,尤以通用于沖擊性強、硬度大、耐磨性高要求的場合。棒條振動篩在鐵礦石中細碎篩分、原煤分級、黃金、建材以及水電、核電工程砂石的篩分等用耐磨篩板。棒條篩分別有敞開型和封閉型兩種結構形式,適用不同作業環境需求,篩面單層和多層結構形式,運行軌跡有直線和圓兩種形式等多種型號及規格。
工作原理
棒條振動篩工作時,由激振器產生的激振力通過篩箱傳遞給篩箱內的篩面上,因激振器產生激振動力為縱向力,迫使篩箱帶動篩網面作縱向前后位移。棒條式振動篩在一定條件下,篩網面上的物料因受激振力作用而被向前拋起,落下時小于篩孔的物料則透篩而落到下層,BTS棒條式振動篩物料在篩網面上的運動軌跡為拋物運動,棒條篩由于這樣周而復始的物料運動,從而完成物料篩分作業。
棒條振動篩結構:
棒條給料機一般由激振源{振動電機}、機體、減振動彈簧、前后支架等組成。一般采用盲板+棒條形式的給料面,其棒條縫隙可調,能在給料的同時將泥土和細碎物料分離出去,有效地發揮了后面的碎碎功能。

1.振動電機:振動電機是一種將動力源和振動源合為一體的新型激振器,高效節能,激振力大,使用可靠,調節簡單,使用維護方便等特點。
2.機體:采用板材、型材焊接而成,其作用是將來通過振動輸送到破碎機。
3.減振彈簧:一般采用金屬螺旋彈簧或橡膠彈簧,其作用是便機體產生彈性振動,減小振動載荷傳遞到基礎或結構架上。
4.支架:采用板材焊接而成,其作用是支撐機體。
產品優勢
1、結構簡單、便于安裝與調試,維護方便;
2、強度高、耐沖擊、耐磨損、低噪音;
3、不堵塞,產量大,壽命長,結實耐用;
4、專門針對水份高、粘性大的分離、分級、有效篩分;
5、相對耗能少,篩分效率高;
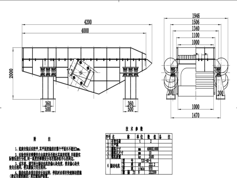
型號參數:

棒條振動篩產品使用維護:
1、操作工應熟悉設備性能、使用方法及維護要求,遵守操作規程,加強維護保養。
2、設備運行期間,應隨時注意振動電機溫升,監聽設備工作聲音是否正常,運行是否平穩。如有異常應停機檢查、處理。
3、定期檢查各部位的緊固件是否松動,焊縫是否磨損開裂,如有松動或裂紋應及時擰緊、焊牢。
4、應定期對振動電機軸承進行潤滑,振動電機累計運行達到5000小時后,應對軸承進行檢查,如有損傷應予更換。