圓盤式給料機是適用于20mm以下粉礦的給料設備,主要供給選煤、選礦、燒結、電力、建材等行業中,裝在運物料機上的一種附屬機械作為運輸機給料之用。使用圓盤給料機能夠讓物料均勻的進入一個設備從而讓下一道工序可以正常工作,節省勞動力,而且保護了設備的性能,延長整個生產線設備的使用壽命。

產品工作原理
圓盤給料機,是由電動機直接驅動減速機構減速后,由減速輸出軸直接輸出動力,并直接驅動著圓盤作每分鐘5-55m的邊緣線速度的低速(0.7~10 r/min)轉動,通過卸料刮刀把料筒和圓盤間隙中溢出的≤50mm顆粒或粉狀物料劃落在給料機下面不同的輸送設備上,完成設計流程所需要的給配料作業。圓盤轉動時,物料被圓盤上的卸料刀均勻地刮到圓盤外下落,這樣隨著圓盤轉動,物料便由卸料刀均勻刮入接料斗中。圓盤連續運轉,就完成了均勻的給料操作。調整卸料刀與圓盤之間的間隙,也可以控制給料量的多少。工作時,電動機通過皮帶輪帶動裝在蝸桿減速器上的圓盤轉動。
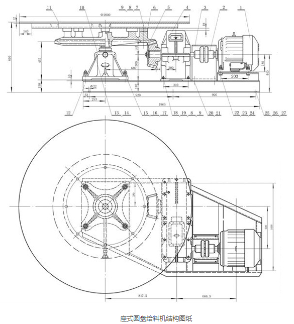
圓盤給料機圖紙:

圓盤給料機的結構形式

本機分敞開吊式(DK)、封閉吊式(DB)、敞開座式(KR)、封閉座式(BR)。采用電機分交流電機和調速電機,當采用調速電機應補差價。(KR無調速電機)。圓盤給料機上鋼板盤(情板)其材料分三種有45Mn2\Mn\鋼板料“G”、輝綠巖情板“H”,注明何種形式。(KR傳動形式僅有一種)
圓盤式給料機是適用于20mm以下粉礦的給料設備。 圓盤式給料機由驅動裝置、給料機本體、計量用帶式輸送機和計量裝置組成。給料機和帶式輸送機由一套驅動裝置驅動,該驅動裝置的電磁離合器具有實現給料機的開、停和兼有功能轉換的作用。計量帶式輸送機的帶速小于1m/s,為了測定帶速設有速度檢測裝置,為了防止稱量輥偏斜設有檢測桿進行調整。

型號參數表:

圓盤給料機使用須知
(一):開機前的準備
1:應仔細檢查所有緊固件是否緊固,不得有松動現象發生。
2:檢查減速機內的機油是否達到標準要求。
(二):維護和使用
1:給料機正常運轉后,方能開始給料。
2:給料應均勻連續,不得有卡堵現象。
3:停機前應首先停止進料,待圓盤上的物料完全排出 后才可停車。
4:減速機內的機油應半年左右更換一次。