河南鵬威機械生產的板鏈斗式提升機NE15-NE400有八個規格型號,機殼采用壓筋結構,剛性強,精度高,操作維修方便、結構緊湊。每小時輸送物料16-441m3,提升高度4.13-54.7m,能滿足多種生產需求。
板鏈斗式提升機主要結構:

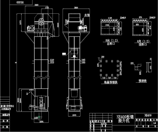
NE系列板鏈斗式提升機由運行部件、驅動裝置、上部裝置、中部機殼、下部裝置組成。
運部件---由料斗和板式鏈條組成,NE30以及下采用單排鏈,NE50--NE800采用雙排鏈。
驅動裝置---采用多種驅動組合驅動,(依用戶實際需要而定).驅動平臺上裝有檢修架和欄桿。驅動制裝置分左和右裝兩種。
上部裝置---安裝有軌道(雙排鏈)、逆止器、卸料口裝有防回料橡膠板。
中間節---部分中間節裝有軌道(雙鏈),以防止鏈條工作中擺動。
下部裝置---安裝有自動張緊裝置。

優勢
1、提升范圍廣:NE板鏈斗式提升機對物料的種類,特性及塊度的適用范圍廣。不僅能提升粉狀、粒狀和塊狀普通物料,而且可提升磨琢性較強的物料.
2、輸送能力大:NE板鏈斗式提升機具有NE15~NE800多種規格。提升量范圍為15~800m3/h。
3、驅動功率小:NE板鏈斗式提升機采取流入式喂料,重力誘導式卸料,且采用密集型布置的大容量料斗輸送,鏈速低提升量大。物料提升時,幾乎無回料現象,因此驅動功率小,理論計算軸功率是環鏈提升機的25%~45%。
4、使用壽命長:NE板鏈斗式提升機的喂料采取流入式,材料之間很少發生擠壓和碰撞現象,本機的設計保證物料在喂料、提升和卸料中不會撒落,這就防止了磨粒磨損,輸送鏈采用板鏈式高強度耐磨鏈條,延長了鏈條和鏈斗的使用壽命。
5、提升高度高:NE板鏈斗式提升機機鏈速低、運行平穩、且采用板鏈式高強度耐磨鏈條,因此可達較高的提升高度(高達40M)。
6、運行可靠性好:先進的設計原理,保證了整機運行的可靠性,無故障時間超過了3萬小時。操作、維修方便,易損件少。
7、結構尺寸小:與同等提升量的其它各種提升機相比,NE板鏈斗式提升機的結構尺寸較小。
8、加工精度高:機殼經折邊、焊接,剛性好,外觀美觀。 密封性好,環境污染少。

特點:
板鏈斗式提升機提升量大、無回料
1.密封性好,環境污染少。
2.操作、維修方便、易損件少。
3.使用成本低,由于能耗低和維修少,使用成本極低。
4.運行可靠,先進的設計原理,保證整機運行的可靠性。
5.結構剛性好,精度高。機殼經折邊和中間壓筋,再經焊接,剛性好、外觀漂亮。
6.機械尺寸小,與同等提升量的其它各種提升機相比,這種提升機的機械尺寸較小。
7.輸送能力大,該系列提升機具有NE15~NE800多種規格。提升量范圍為15~800m3/h 。
8.操作方便,維修少,易損件少。輸送鏈為套筒滾子鏈,誘導式重力卸料,用于各種粉狀、塊狀物料的垂直提升。
型號參數:

斗式提升機維護時應該注意什么:
1、應空負荷開車。所以每次停機前應排盡所有料斗內的物料,然后再停車。
2、不能倒轉。倒轉即可能發生鏈條脫軌現象,排除脫軌故障很麻煩。
3、均勻喂料。禁止突然增大喂料量。喂料量不能超過提升機的輸送能力。否則容易造成底部的物料堆積嚴重時發生“悶車”事故。
4、及時適量補充潤滑油。
5、板鏈斗式提升機鏈條和料斗嚴重磨損或損壞時應及時更換。